XF Series Dual-End Asymmetrical Cleaning TechnologyAutomatic Filtration for Complex Working Conditions
SC Series Scanning Self-Cleaning TechnologyLower Energy Consumption, Higher Filtration Accuracy
Helps Customers Reduce Waste, More Environmentally Friendly
 
INOCO Safeguards Your Beautiful Life
Through Industrial Innovation
Leveraging Computational Fluid Dynamics Simulation,
Modular Design, Intelligent Filtration Technology,
and 3D Printing, Innot's Team Continuously Pushes
the Boundaries of Physical Limits
INSIST    INNOVATE    COOPERATE
Get a Free Quote
High-flow Filters
Product Overview
The INOCO MSO-DS filter element filter is suitable for high-flow liquid filtration. It consists of a filter housing and over a hundred filter elements. It has been widely applied in solid-liquid separation in industries such as petroleum, chemical engineering, machinery, metallurgy, textile, printing and dyeing, electroplating, medicine, and food. With years of R&D experience and technological accumulation in the filter membrane manufacturing process, INOCO provides customers with various high-efficiency and high-quality microporous filter membrane filtration systems.
Product Overview

INOCO HFS-D Series
High-flow filters

The water flow direction of the high flow cartridge is inward and outward, and it adopts a unique flat plate mesh cage structure, which makes the cartridge seal more tightly due to the action of water pressure during operation. The unique sealing structure ensures the tightness of the system effectively. INOCO high flow filter can also be used in horizontal structure, more convenient for cartridge replacement, the cartridge is made of synthetic fibre, with a certain degree of void layer, no longer covered with other filter media, the operation of the operation is simple. The high flow filter element adopts the patented folding design of INOCO, which makes the single filter element have a large filtration area and longer service life. The cartridges are connected to the INOCO MSO-T Series tube plate by a unique sealing structure and have nothing to do with the filter body.

Filter Performance Parameter

Filtration Rate 0.1 m~100 m
Design Temp. 80℃(standard,higher temp.needs special design)
Design Pressure 1.0Mpa(standard, higher pressure needs special design)
Flow rate 0.1~5000m³/h
Filter Element Qty. 1-30pcs
Filter Element Length 500 100 1600mm
Filter Element Dia. 150mm

Filter Item Material
Shell CS、304、316L、C276、2205、coating
Filter Element PP、 PTFE、Pleated Stainless Steel
Shell Gasket Standard NBR, Optional viton, PTFE-coated viton, Metal-wound gasket


Filter Performance Parameter

◎ Absolute filtration accuracy, cone-shaped microporous filter media
◎ Maximum dirt-holding capacity to shell diameter ratio with guaranteed low pressure drop
◎ Uniform flow distribution
◎ Water flow in and out of the structure, greatly improving the effective filtration efficiency
◎ High absolute filtration accuracy:0.5µm
◎ Cartridge design without internal support allows for easy handle
◎ Max allowed differential pressure between inlet and outlet:0.35MPa


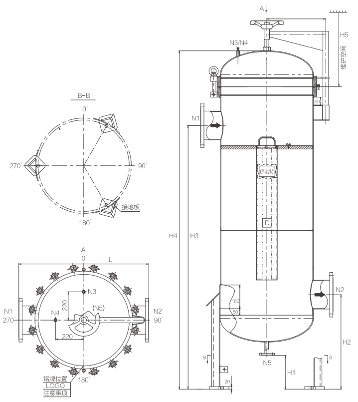
Model Inlet/Outlet Dia. mm Flow t/h D(mm) H1(mm) H2(mm) H3(mm) Maintenance Space(mm) Weight(kg)
HFS-D-4 100 120 450 505 1675 2091 800 236
HFS-D-5 125 150 500 608 1800 2248 800 312
HFS-D-7 150 210 550 670 1890 2364 800 370
HFS-D-8 150 240 650 680 1910 2436 800 450
HFS-D-9 200 270 700 720 2010 2579 800 537
HFS-D-13 200 390 800 790 2070 2689 800 742
HFS-D-18 250 540 900 870 2220 2918 800 967
HFS-D-22 300 660 1000 930 2350 3134 800 1175
HFS-D-24 300 720 1100 1060 2510 3341 800 1353
HFS-D-30 300 900 1200 1058 2500 3368 850 1838
HFS-D-36 350 1080 1300 1115 2600 3538 900 2144

Model Inlet/Outlet Dia.(mm) Flow t/h D(mm) H1(mm) H2(mm) H3(mm) Maintenance space(mm)
HFS-D-W-4 100 120 450 429 349 1922 700
HFS-D-W-5 125 150 500 455 405 2060 700
HFS-D-W-7 150 210 550 480 430 2111 700
HFS-D-W-8 150 240 650 530 480 2229 800
HFS-D-W-9 200 270 700 55 505 2321 800
HFS-D-W-13 200 390 800 606 556 2391 900
13HFS-D-W-17 250 510 900 656 606 2569 1000
17HFS-D-W-21 300 630 1000 706 656 2685 1100
21HFS-D-W-24 300 720 1100 756 706 2830 1200
24HFS-D-W-30 300 900 1200 808 758 2848 1300
30HFS-D-W-37 350 1110 1300 858 808 3016 1400

INOCO HF150 Series High flow rate cartridge
Single cartridge up to 60t/h large flow rate

High Velocity Filter HF150 Series
Single Filter Can Reach 60T/H Large Flow

Work Characteristics
Max working temperature PP: 80℃
GF:130℃
Max working pressure difference 0.38MPa/21℃
0.15MPa/80℃

Length inch Design flow m³/h Max flow m³/h Filtration area ㎡
20 15 30 2.8
40 30 60 5.6
60 45 90 8.4

Material Structure
PP GF
Filter Element Deep folded PP Resin synthesis glass fibre/polyester
Support/Influent Layer PP Polyesters
End cap Glass fibre reinforced polypropylene Glass fibre reinforced polypropylene
Outer protection sleeve Polyesters Polyesters

Selection Table
Filter Element Filtration Rating Length Seal
HF150 PP 0500 20 S=silicone rubber
PP 0050=0.5μm 20=20"(528mm) E=EPDM
GF 0080=0.8μm 40=40"(1028mm) V=Viton
0100=1.0μm 60=60"(1540mm)
0200=2.0μm
0300=3.0μm
0500=5.0μm
1000=10μm
1500=15μm
2000=20μm
4000=40μm
7000=70μm
9000=90μm


Flow Characteristics
◎ Composed of more than 5 layers of nano-fibre membranes, it can achieve ultra-high filtration efficiency of more than 99%, while providing a larger dirt-holding space
◎ High-density folding to achieve the perfect combination of extra large filtration area, high flow rate, long life and high dirt-holding capacity
◎ PP skeleton inside, not easy to deform, and can withstand greater reverse differential pressure
◎ Optimised double-layer dense polyester mesh cover for greater strength and pressure resistance
◎ Unique V-shaped sealing ring to provide better sealing performance
◎ Glass fibre reinforced end caps to improve the overall strength of the cartridge
◎ End handle design, easy and quick replacement, save a lot of manpower and time


INOCO HFS-D2 Series
High flow rate filter

HFS-D2 series high-flow fine filters are designed and manufactured by using high-quality filter elements and combining with years of experience in the filtration industry, capable of maximising the flow rate in a compact system design, and compared with traditional filtration systems, D series high-flow filtration has more advantages.

High Flow
The D2 series filters have a unique design that allows a single cartridge to flow up to 50 t/h. Therefore, fewer cartridges are needed to meet your flow requirements. Using fewer cartridges reduces filter size. Based on the specific flow rate, high flow filters take up half the space compared to competing cartridges. This results in lower investment costs and a compact system design that saves valuable factory space.

HFS-D2 series
High flow filters are specially designed to achieve system flow requirements in compact spaces. The filter cartridges we offer are all standard designs, and customised cartridges are also available to meet your specific needs. All filters can be designed and manufactured to meet GB150 standards. Stainless steel filters have polished outer surfaces; carbon steel filter cartridges are sandblasted for protection.

Filter Element data
40″: flow can up to 50T/H
60″: flow can up to 80T/H;high dirt-holding capacity-10KG
Accuracy range:1, 2, 5, 10, 15, 25, 40 and 70 μm
Filtration efficiency:99.9%
Materials are FDA approved

Filter Material
Filter Item Material
Body CS、304、316L、C276、2205、coating
Filter Element PP
Body gasket Standard NBR, Optional viton, PTFE-coated viton, Metal-wound gasket

Filter Performance Parameters
Filtration Rating 0.5~100 μm
Max temp. 80℃ (Standard,special design for higher temperatures)
Max press 1.0Mpa (Standard conditions, special designs for higher pressure)
Flow 0.1~5000 m³/h
Filter Element Qty. 1~30pcs
Filter Element Length 500、1000、1600mm
Filter Element Dia. 160mm

Regardless of the product type or application, our wide range of high-quality filters and our extensive experience in cartridge development and production will provide you with unique, practical and efficient solutions.

■ Longer life
■ Site integrity testing
■ Reduced flushing time
■ Special cartridge can be washed repeatedly
■ Quick change of filter cartridges

◎ ISO9001
◎ ISO14001
◎ ASME U STAMP
◎ BV、TUV
◎ CCS
◎ CE
◎ Pressure vessel production licence
◎ Jiangsu Private Science and Technology Enterprises

Vertical Filter Cartridge Models(101.6cm Filter Element Only)
HFS-D2-1 19.4 48.3 91.4 191.8 304.8 54.6 25.4
HFS-D2-3 31.8 82.6 123.2 225.7 304.8 96.5 35.6
HFS-D2-5 36.8 87.6 138.4 248.6 363.2 119.4 58.4
HFS-D2-7 41.9 92.7 168.9 284.2 355.6 138.4 76.2
Horizontal Filter Cartridge Models
HFS-D2-1W 88.9 19.4 48.3 147.5 279.4 61 30.5
HFS-D2-1W-6 88.9 19.4 48.3 198.3 355.6 61 30.5
HFS-D2-3W 101.6 31.8 82.6 164.5 279.4 96.5 50.8
HFS-D2-3W-6 101.6 31.8 108 215.3 330.2 96.5 50.8
HFS-D2-5W 101.6 36.8 87.6 175.7 279.4 119.4 61
HFS-D2-5W-6 101.6 36.8 118.1 231.6 330.2 119.4 61
HFS-D2-7W 135.9 41.9 92.7 184.2 279.4 142.2 76.2
HFS-D2-7W-6 135.9 41.9 118.1 235 381 142.2 76.2
Product Solution
Product Authentication

INOCO Green Energy Solutions Co., Ltd. |
Wuxi INOCO Filtration Equipment Corp., Ltd. | Wuxi INOCO Filtration System Co., Ltd.

Scan to follow INOCO Filtration

Contact Wuxi INOCO
Contact Info: +86-510-82621388、88302966 、82603252、83782787
Contact Address: 5th Floor, No. 28, Huaxia Kaixuan Building, Erquan Middle Road, Xishan District, Wuxi City
Contact Address: No. 6, Lingzhi Road, Zhongxiang Village Industrial Zone, Heqiao Town, Yixing City
24-hour hotline: +86-15852561666
Email Address: zhaokunnian@inoco.cn
Website: www.inocofilter.com www.inococn.com

Copyright © INOCO Green Energy Solutions Co., Ltd.